get to know our
Van Conversion Packages
We understand how overwhelming it can be to plan and design a custom van conversion from scratch. To make your experience as smooth as possible, we offer three base packages that cover a host of needs, from the essential comforts of home to the backroad-ready adventure vehicle.
package one
The Weekender
This is our most affordable van build, perfect for those looking to get outside and have their basic needs covered on a budget. You can continue to build on the Weekender with optional add-ons to make it your perfect adventure vehicle.
intended for:
Standard mercedes sprinter 144 / ram promaster 136 conversion
STARTING AT:
$32k
-
Raised bed (mattress not incl.)
Hideaway storage under bed
Bunk window
Sliding door window
Cork or waterproof ‘coin’ flooring
Fabric or wooden shiplap walls
Cedar ceiling
Havelock wool insulation
-
Overhead cabinetry
Kitchen cabinet with self-latching doors and soft-close drawer slides
Cooler
Passenger swivel seat
Adjustable Lagun swivel table
Custom hardwood chopping board
-
2000w GoalZero power center
170W Solar
Ceiling mount LED puck lights
Bedside reading light
Maxxair rooftop fan
-
Espar heater
Extra windows
Refrigerator
Slide-out gear tray in under-bed storage
Hardwood countertop
Driver side swivel seat
Body Flare
Pre-wiring for USB & AC
package two
The Journeyer
The Journeyer is our ‘best of both worlds’ van kit, offering incredible comfort and luxuries at a competitive mid-range price. If you’re planning extended trips into the wilderness with all of your gear, this is the van for you.
intended for:
Standard mercedes sprinter 144 / ram promaster 136 conversion
Starting at:
$55k
-
Raised bed (mattress not incl.)
Hideaway storage under bed
Sliding door window
Cork, wood vinyl, or waterproof ‘coin’ flooring
Fabric or wooden shiplap walls
Cedar ceiling
Havelock wool insulation
Flares
Bunk window in flare
Storage bench
-
Isotherm Cruise 85 refrigerator
Overhead cabinetry
Kitchen cabinet with self-latching doors and soft-close drawer slides
Passenger swivel seat
Adjustable Lagun swivel table
Custom hardwood chopping board
-
Fresh Water System
Exterior Water Fill
Stainless-Steel Sink
Water Pump
5-Gallon Removable Grey Water Tank
Outdoor gear and dog wash station
-
200Ah Lithium Battery System
2000W Inverter
200W Solar system
Esbar / Webasto heater
Maxxair rooftop fan
Bedside fan
Shore power
Battery to battery alternator charger
2 x AC outlets
2 x USB DC outlets
LED ceiling and under cabinet lighting
-
Larger electrical system
Exterior accessories — LED lights, ladder, roof rack etc.
Propane / Induction stove
Overhead cabinets above bed
Upgrade outdoor wash station to heated outdoor shower
package three
The Nomad
Equipped with the comforts of home and outfitted with a robust infrastructure, the Nomad has everything you’ll need to take life on the road full time.
intended for:
mercedes sprinter 170 / ram promaster 159 conversion
STARTING AT:
$78k
-
Raised bed (mattress not incl.)
Hideaway storage underbed with pull out gear drawers
Sliding door window
Wood vinyl, cork, or waterproof ‘coin’ flooring
Fabric or wooden shiplap walls
Walnut/Oak ceiling with dimmable recessed strip lighting
Havelock wool insulation
Bunk window In flare
-
Isotherm Cruise 130 refrigerator
L-shaped storage bench
Kitchen galley cabinets
Overhead cabinets above kitchen & bed
Under cabinet mood lighting
Adjustable Lagun swivel table
Passenger swivel seat
Propane 2 Burner Stove / Induction cooktop
Hardwood Counter Top
-
30-gallon fresh water system
Exterior water fill
Stainless-steel sink
Water pump
Water heater
5-Gallon removable grey water tank
Heated outdoor shower
Composting toilet
-
400Ah Lithium Battery System
3000W Inverter
400W Solar system
Esbar / Webasto heater
Maxxair rooftop fan
Isotherm Cruise 130 refrigerator
Bedside fan
Shore power
Battery to battery alternator charger
3 x AC outlets
3 x USB DC outlets
Smart touchscreen controller
-
Front bumper
Roof rack
Rear ladder and tire carrier
Bike rack or carrier
Upgraded suspension
All-Terrain tires and wheels
Awning
Radiant floor heating
Indoor shower
Fresair evaporative cooling
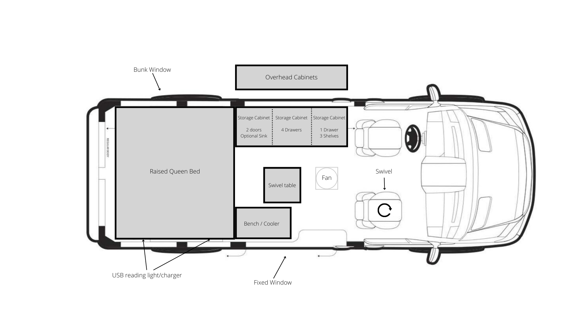
VAN FLOOR PLANS
PEEK INSIDE
The Weekender
PEEK INSIDE
The Journeyer
PEEK INSIDE
The Nomad
Fully Custom Packages
Need something a little different from our standard builds? Let us know your vision and we can build your lekker van conversion. Price is dependent on the build. Please reach out to us to begin the design and quote process.
Next steps
Here’s how it works
— 01
Get in touch for a quote
Reach out and let us know what kind of project you have in mind. We’ll schedule a free consultation and provide an estimate based on your needs.
— 02
Make it official
We’ll provide a contract for both of us to sign and require a 5% deposit upon signing. Further payments will be tied to the project timeline.
— 03
Roll up our sleeves
We’ll stay in sync with you to design a build that meets all of your criteria, from function to aesthetic.
— 04
Build your dream
Once we’re fully aligned on direction, we’ll get to work on building out the van of your dreams.
Recent Work
Here’s a selection of recent adventure-ready van conversions.
Van Conversion FAQs
-
All of our vans are 100% custom, meaning the timeline depends on your unique needs and design, preferred materials, and solar system. We will give you a lead time during the consultation and design process, but you can expect between 2-4 months.
-
After you pay your 5% deposit, we will begin the design process. The day your van arrives, you will pay a 45% deposit, at which point we will begin the physical build.
-
We’re usually booked 1-3 months out, depending on the season. Feel free to reach out to check our current availability.
-
Once we receive your van, you can expect to hear from us if we have any questions that were not covered during the design process. You will hear from us at the halfway mark and we will inform you when we are roughly 1 week from completion. Other than that, please do not expect to hear from us and if you do reach out, expect a 24-48 hour response time (unless it’s urgent, of course) as we’ll be busy working on your new van!
-
Due to insurance and liability issues, this won’t be possible. You’re welcome to swing by the shop and check in on progress, though! Bring pizza.
-
Please see our warranty page.
-
You absolutely can make changes! Depending on the specifics of the change, it may affect your total cost. We will provide you with a change order that will detail the changes and any increase in time or cost it may incur.
-
We break up payments in 4 phases:
Initial deposit: 5% of your total quote. This confirms your spot in our schedule and initiates the design phase.
45% - Due on the day we receive the van
25% - Due at the halfway point
25% - Due on the day you pick up your van
-
Checks, ACH payments, or cash
-
No, but we can connect you with local preferred dealers.
-
Yes! Please get in touch and we can help with anything from a window install to ripping out your old kitchen and putting in a new one.
Have a question you don’t see answered here? Just get in touch.

